- Woonoppervlakte
- Circa 191 m²
- Perceeloppervlakte
- Circa 324 m²
- Bouwjaar
- Gebouwd in 1978
- Aantal kamers
- 7 kamers (5 slaapkamers)
Deze verrassend ruime en degelijk gebouwde woning biedt alles wat je als (opgroeiend of samengesteld) gezin zoekt: vijf volwaardige slaapkamers, een lichte en sfeervolle woonkamer met split-level indeling, een moderne keuken en volop bergruimte dankzij de bijkeuken, bergingen en extra kamer boven de garage. Dankzij het vrije uitzicht aan de voorzijde, een zonnige tuin op het oosten én een eigen oprit voor twee auto's geniet je hier dagelijks van rust, comfort en gemak. Ook aan duurzaamheid is gedacht: met 12 zonnepanelen (2023) en goede isolatievoorzieningen, zoals HR++ glas is dit een toekomstbestendige woning.
De woning is gunstig gelegen in een rustig, autoluw hofje in de Aalsburg – een fijne, kindvriendelijke wijk die uitermate geschikt is voor wie waarde hecht aan privacy en veiligheid. Voor jonge gezinnen zijn er diverse speelveldjes en een basisschool op korte loopafstand te vinden. Tegelijkertijd profiteert u van de nabijheid van het levendige centrum van Wijchen, met winkels, supermarkten, gezellige horecagelegenheden en het treinstation binnen handbereik. Ook scholen, sportvoorzieningen en medische zorg zijn ruimschoots vertegenwoordigd in de directe omgeving. Op steenworp afstand ligt het Wijchens Meer, waar u kunt genieten van allerlei recreatiemogelijkheden zoals wandelen, hardlopen of een ontspannen ommetje met de kinderwagen . Dankzij deze centrale ligging combineert de woning het beste van twee werelden: het comfort van stedelijke voorzieningen en de rust van een gemoedelijke woonwijk.
Indeling:
Begane grond:
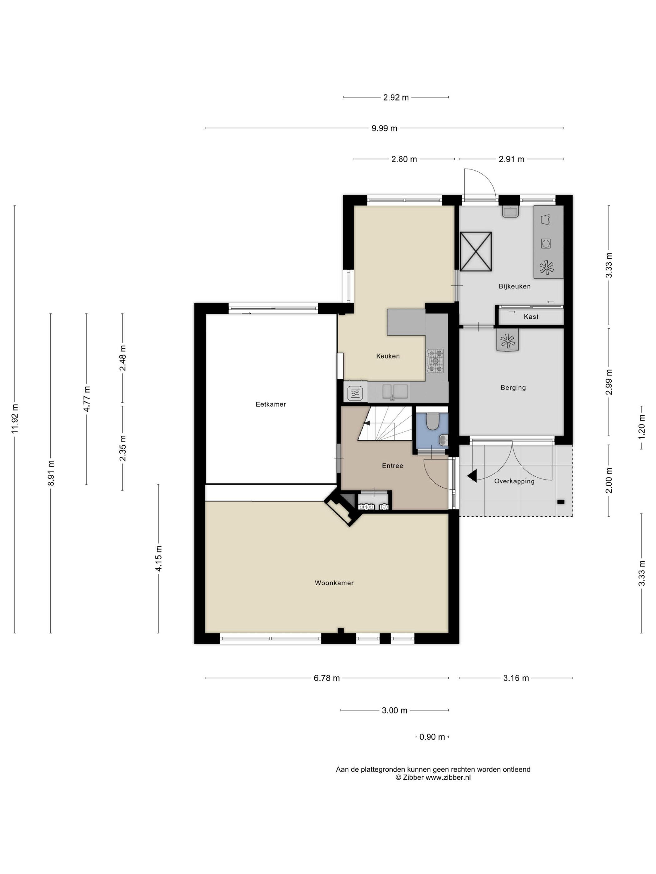
Je komt binnen via de vernieuwde voordeur (Alku, 2023) in een ruime entreehal met trapopgang en toiletruimte. Vanuit hier heb je direct toegang tot de lichte en sfeervolle woonkamer aan de voorzijde van de woning. De woonkamer heeft een praktische indeling, waardoor deze gemakkelijk in te delen is met een royale zithoek en een ruime eetkamer. Dankzij de grote raampartijen aan de voorzijde geniet je van een prettige lichtinval en een groen uitzicht op het rustige hofje. De ruimte is sfeervol afgewerkt met een geschilderd balkenplafond, strak geschilderde metselwerkmuren en eikenhouten vloerdelen. Een gashaard zorgt voor extra warmte en gezelligheid op koude dagen. De woonkamer ligt iets lager en is via een split level verbonden met de achterzijde van de woning .
Aan de achterzijde vind je de moderne open keuken, die is uitgerust met diverse inbouwapparatuur en volop werk- en kastruimte. Aansluitend bevindt zich de praktische bijkeuken met een handige vaste kast en aansluiting voor wasapparatuur, evenals een tweede berging. Via de schuifpui (Alku, 2023) in de eetkamer stap je zo de fraai aangelegde achtertuin in, met een groot terras, groene borders, een grasveld en een vrijstaande berging achterin de tuin.
Eerste verdieping:
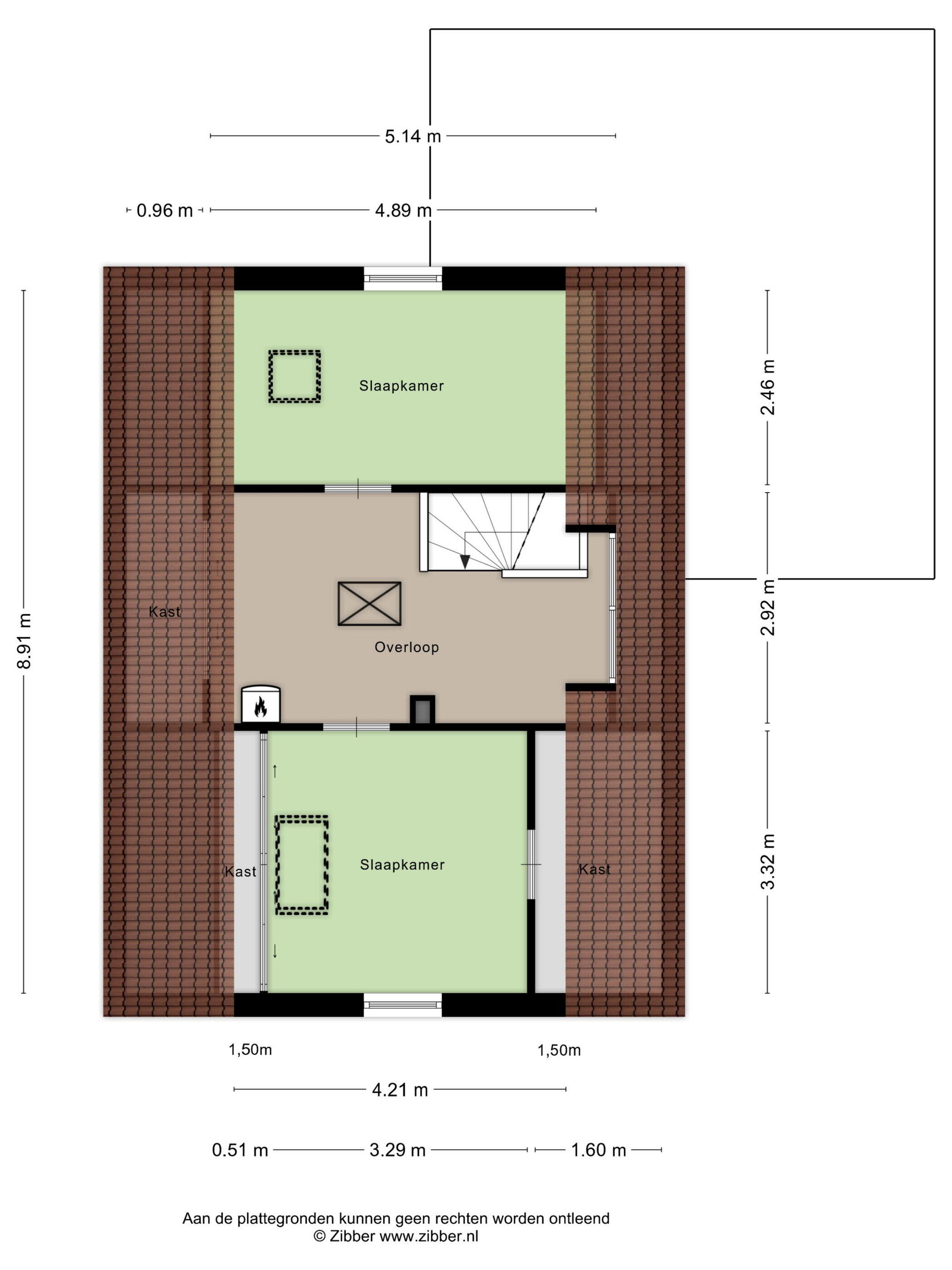
Vanaf de overloop heb je toegang tot drie ruime slaapkamers, waarvan twee aan de achterzijde en één aan de voorzijde van de woning zijn gelegen. De kamers zijn netjes afgewerkt en bieden voldoende ruimte voor kasten en een tweepersoonsbed. De moderne badkamer is voorzien van een dubbele wastafel, een royale inloopdouche, een toilet, een badkamermeubel en als kers op de taart: een infrarood sauna – perfect voor een moment van rust en ontspanning in eigen huis. Verder is er een extra zolderkamer bereikbaar, gesitueerd boven de garage. Deze ruimte biedt volop mogelijkheden voor het creëren van een hobbyruimte of een comfortabele thuiswerkplek.
Tweede verdieping:
Op de tweede verdieping bevinden zich twee ruime slaapkamers, waarvan een voorzien is van een vaste kast en bergruimte achter de knieschotten en een overloop met dakkapel. Op deze overloop bevindt zich de opstelplaats voor de cv-ketel (Nefit Topline, 2011, eigendom) en een toegangsluik tot een praktische vliering. Dankzij de ruime kamers, dakramen en de dakkapel is dit een volwaardige woonlaag met veel lichtinval.
Tuin:
De woning beschikt over een zonnige, goed onderhouden voor- en achtertuin met ligging op het oosten. De achtertuin is fraai aangelegd met meerdere terrassen, een gazon, volwassen beplanting in kleurrijke borders. Daarnaast is er een ruime vrijstaande berging voorzien van elektra. Een zonnescherm zorgt voor extra comfort op warme dagen. De tuin is zowel via de woning als via een achterom bereikbaar – een ideale buitenruimte voor jong en oud.
Bijzonderheden:
- Voorzien van 12 zonnepanelen (2023)
- Maar liefst 5 volwaardige slaapkamers
- Voorzien van rolhorren en elektrische rolluiken
- Parkeren op eigen terrein (met 230v oplaadpunt)
- Gelegen aan een rustig en autoluw hofje– kindvriendelijk en groen
- Binnenmuur met buren uitgevoerd met dubbele spouw – extra geluidsisolatie
- Voordeur en schuifpui geplaatst in 2023 (Alku)
- Ruime en fraai aangelegde achtertuin met zonnescherm, berging met elektra
- Split-level woonkamer met gashaard en uitzicht op het hofje
- Extra kamer boven de garage – ideaal als hobbyruimte of thuiswerkplek
- Moderne open keuken met diverse inbouwapparatuur
- Bijkeuken en bergingen voor extra opslag en wasruimte
- Centrale ligging: nabij Wijchens Meer én op loopafstand van het centrum, station en voorzieningen
Overdracht
- Vraagprijs
- € 635.000 k.k.
- Status
- Verkocht
- Aanvaarding
- In overleg
Bouw
- Object type
- Eengezinswoning, halfvrijstaande woning
- Soort bouw
- Bestaande bouw
- Bouwjaar
- 1978
- Soort dak
- Zadeldak bedekt met pannen
Oppervlakte en inhoud
- Woonoppervlakte
- 191 m²
- Perceeloppervlakte
- 324 m²
- Inhoud
- 723 m³
- Overige inpandige ruimte
- 14 m²
- Externe bergruimte
- 10 m²
- Gebouwgeb. buitenruimte
- 6 m²
Indeling
- Aantal kamers
- 7 kamers (5 slaapkamers)
- Aantal badkamers
- 1 badkamer
- Badkamervoorzieningen
- Toilet, douche, dubbele wastafel, sauna
- Aantal woonlagen
- 4 woonlagen
- Voorzieningen
- Rolluiken, tv-kabel, schuifpui, dakraam, glasvezel kabel
Energie
- Energielabel
- C
- Energielabel registratie
- 17-12-2020
- Isolatie
- Dakisolatie, muurisolatie, vloerisolatie, dubbel glas, hr glas
- Verwarming
- Cv-ketel
- Warm water
- Cv-ketel, elektrische boiler eigendom
- Cv ketel
- Nefit topline cw5 combiketel gas gestookt uit 2011 (eigendom)
Buitenruimte
- Ligging
- Aan rustige weg, in woonwijk
- Tuin
- Achtertuin, voortuin
- Afmetingen achtertuin
- 107 m² (9.46 meter diep en 11.32 meter breed)
- ligging tuin
- Gelegen op het oosten en bereikbaar via achterom
Bergruimte
- Schuur / berging
- Inpandig
- Voorzieningen
- Voorzien van verwarming, voorzien van elektra
Garage
- Soort garage
- Geen garage
Parkeergelegenheid
- Soort parkeergelegenheid
- Op eigen terrein
Indicatie hypotheeklasten
Eigen inleg:
Spaargeld / overwaarde
Rente:
Laagste 10-jaars rente
Laagste 10-jaars rente
2,85% - Centraal Beheer Groen... - NHG
3,08% - Centraal Beheer Groen... - 80%
Laagste 20-jaars rente
3,29% - Centraal Beheer Groen... - NHG
3,52% - Centraal Beheer Groen... - 80%
Laagste 30-jaars rente
3,41% - Centraal Beheer Groen... - NHG
3,74% - Centraal Beheer Groen... - 80%
Hypotheek:
Bruto maandlasten: € 0 p/m
Netto maandlasten: € 0 p/m
Hoe berekenen we dit?
Het rentepercentage is gebaseerd op de laagste 10 jaars vaste rente voor één hypotheekdeel. De vermelde rente (3.08% zonder NHG) is gecontroleerd op 03-02-2026. Deze berekening is gebaseerd op een annuïteitenhypotheek die volledig wordt afgelost, waarbij de maandlasten gedurende de gehele looptijd gelijk blijven. De werkelijke rente en netto maandlasten kunnen variëren, afhankelijk van uw persoonlijke situatie en de hypotheekverstrekker. Raadpleeg een financieel adviseur voor een nauwkeurige berekening en advies. Aan deze berekening kunnen geen rechten worden ontleend; het dient enkel als indicatie.
Documentatie
Kadastrale kaart
Leefomgeving
Plattegronden PDF
BAG uittreksel
Brochure
Bezoek onze website
Inloggen move.nl
Bezichtiging
Bod uitbrengen
Waardebepaling
Zoekopdracht
Alles downloaden
Zonnegrenzen bekijken
Op de kaart
Inwoners in Wijchen
Cijfers voor postcodegebied 6602
- Totaal aantal inwoners
- 36260 inwoners
- Mannen
- 49%
- Vrouwen
- 51%
Inwoners in Wijchen
Cijfers voor postcodegebied 6602
- tot 15 jaar
- 12%
- 15 tot 25 jaar
- 13%
- 25 tot 35 jaar
- 19%
- 45 tot 65 jaar
- 34%
- 65 en ouder
- 21.7%
Huishoudens in Wijchen
Cijfers voor postcodegebied 6602
- Eenpersoons zonder kinderen
- 27%
- Meerpersoons zonder kinderen
- 32%
- Huishoudens zonder kinderen
- 59%
Huishoudens in Wijchen
Cijfers voor postcodegebied 6602
- Huishoudens met één kind
- 20%
- Huishoudens met meerdere kinderen
- 21%
- Huishoudens met kinderen
- 41%
Woningen in Wijchen
Cijfers voor postcodegebied 6602
- Woningen voor 1945
- 6%
- Woningen tussen 1945 en 1965
- 23%
- Woningen tussen 1965 en 1975
- 22%
- Woningen tussen 1975 en 1985
- 22%
- Woningen tussen 1985 en 1995
- 7%
Woningen in Wijchen
Cijfers voor postcodegebied 6602
- Woningen tussen 1995 en 2005
- 7%
- Woningen tussen 2005 en 2015
- 5%
- Woningen na 2015
- 6%
- Huurwoningen
- 40%
- Koopwoningen
- 60%
Overige in Wijchen
Cijfers voor postcodegebied 6602
- Gemiddelde WOZ waarde
- € 309.000,-
- Personen onder de 65 met uitkering
- 7%
Overige in Wijchen
Cijfers voor postcodegebied 6602
- Adressen per km²
- 1859
- Stedelijkheid (schaal 1 op 5)
- 80%
Korte feiten over Wijchen
Wijchen is de hoofdplaats van de gemeente Wijchen in de Nederlandse provincie Gelderland. De plaats is met 36.625 inwoners (op 1 januari 2021) de grootste in de gelijknamige gemeente van bijna 41.000 inwoners. Wijchen ligt aan de zuidgrens van Gelderland, tegen Noord-Brabant aan.
Indien u vragen heeft of u wilt een bezichtiging inplannen, dan kunt u gebruik maken van het formulier hiernaast. Er zal daarna op korte termijn contact met u worden opgenomen.
Kasteellaan 23
6602 DB, Wijchen
024 64 90100 binnendienst@driessenmakelaardij.nl www.driessenmakelaardij.nlContact opnemen
Al 40 jaar uw huismakelaar
Ondernemende makelaar met ambitie
U wilt een huis kopen, verkopen of laten taxeren. Het liefst schakelt u een betrouwbare makelaar in bij u in de buurt. Maar hoe vindt u precies de makelaar die het best bij u past? Het aanbod is al zo groot.
Driessen Makelaardij maakt uw keuze een stuk gemakkelijker. Hoe? Allereerst zijn we al veertig jaar een begrip in de regio. Met een kantoor in Wijchen en in Nijmegen kennen wij de lokale huizenmarkt op ons duimpje. En niet onbelangrijk: de huizenmarkt kent ons. ‘Want vaak is de eerste stap van een woningzoeker de stap naar ons kantoor.’ Hierdoor weten wij vraag en aanbod snel bij elkaar te brengen en perfect in te spelen op de wensen van klanten en potentiële klanten. Bovendien zijn we aangesloten bij de NVM, de grootste brancheorganisatie in de makelaardij. Onze mensen zijn dus uitstekend in staat het hele aan- en verkooptraject van begin tot eind professioneel te begeleiden.
Uw ambitie is onze ambitie. Dat wil zeggen: u verwacht van ons dat we tot het uiterste gaan u die kwaliteit te bieden waarom we al zo lang bekend staan. Daar mag u ons aan houden!
Nieuwste reviews
-
Zesakkers 2015
Het contact met de makelaar verliep erg goed. Goed bereikbaar, korte lijntjes en deskundig. Erg tevreden
-
Aalsburg 2524
Fijne en goede communicatie.Goed advies en meedenken met de klant.Zo kan het dus ook 😀Bedankt Ivonne Jansen + binnendienst team
-
Marskramer 51
Prettig contact met de makelaar; zij hield ons tussentijds steeds op de hoogte na een bezichtiging; heel fijn!